Probeer zoveel mogelijk details te geven.
Bent u geïnteresseerd in deze woning? Neem in plaats daarvan hier contact op met de verhuurder.
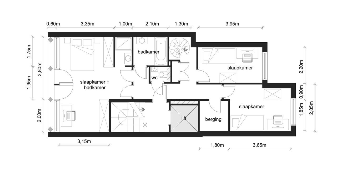
3 Kamers
-
Appartement
110 m²
Gekopieerd