Woning met 2 slaapkamers, garage en grote tuin.

Kerkeneinde 78 - 2620 HEMIKSEM

  • House
  • |
  • 90 m²
  • |
  • 2 Bedrooms
  • |
  • 2 days ago

Daily views icon77 views last 24 hours

Ask a question

About this property

Sign up to see all the photos and details for this rental property
Register Now

Welcome to your new suburban oasis at Kerkeneinde 78 - 2620 HEMIKSEM! This charming 2-bedroom house offers a spacious and welcoming environment. The large backyard is perfect for outdoor gatherings, and the cozy interior provides a comfortable retreat. Located in a family-friendly neighborhood, you'll have access to parks, schools, and community amenities. Priced affordably at € 875, this house is ideal for those seeking a peaceful suburban lifestyle. Schedule a viewing today to experience the warmth and comfort this house has to offer.


Property features
Property type
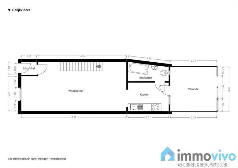
Size
90 m²
Bedrooms
2
Elevator
No
Parking
Yes
Energy rating
254 kWh/m²/jaar

About the rental
Monthly rent
€ 875
Utilities
€ 0
Deposit
-
Rental period
-
Date available
-

Noticed an error in the listing?
Help us make Rentumo better - report any incorrect information and we'll take care of it.
Report an issue

FAQ

Gain unlimited access to all details of all search results on Rentumo with a Premium membership. Click here to sign up for Rentumo Premium.

You are searching 1-5 rental websites. We search more than 350 for you. We find over 200 new homes daily from all websites. You receive notifications every hour with new matches. You save over 1 hour of searching every day using Rentumo.

Sign up for a SearchAgent and receive notifications, ensuring you’re the first to know when new homes become available on the market. Click here to sign up for FREE.

This listing is found on another website, as we scour over 500 websites across Belgium to consolidate all listings into one convenient search for you. In other words, we do all the searching for you.

Always insist on meeting landlords in person before making any deposits. If a landlord asks for a deposit before you’ve seen the property, consider it a red flag. Ensure you book a viewing, meet in person, and obtain a signed contract before proceeding with any payments.

If the rental is no longer available, has the wrong address or seems incorrect, please report it here.

We scan 456 rental websites daily and find hundreds of new listings every day to send you fast notifications.

If there's an issue, we'll review it quickly — and you may be eligible for a refund.

Report an error here.

Location All houses for rent in Boerenhoek

Haven't found a new home yet?

  • Create a free Search Agent
  • +700 new homes daily
  • 7 out of 10 people who found a new home subscribed to our SearchAgent
  • Your search criteria

Boerenhoek
€ 1,000/month, min. 2 bedrooms

Monthly rent
875
Contact
Logo Close
Home icon